Баня на Рублевке
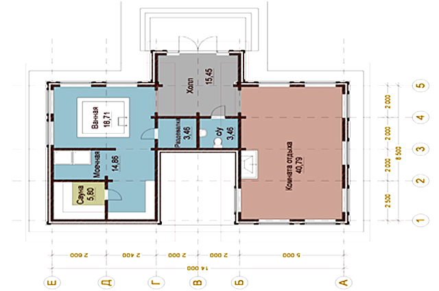
Общая площадь 103 м2. Баня из бруса толщиной 140 мм с системой утепления. Выполнена в стиле немецкого конструктивизма. Хорошо смотрится в комплексе зданий, выполненных в таком же стиле. Оригинальное решение фасадов привлекает внимание истинных ценителей архитектуры. Планировочное решение удачно вместило большую комнату отдыха с камином (41 м2), просторный холл (15,5 м2), различные санитарные помещения, удобный бассейн (18,7 м2) и сауну.
