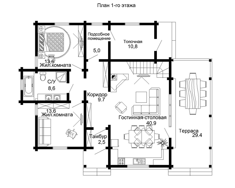
Дом Альпийский 2
Строительство деревянного дома из профилированного бруса
Строительство дома — достойная цель для настоящего мужчины. Хорошее, уютное и надежное жилье, в котором разместится вся семья, станет предметом гордости. Создавая домашний очаг, всегда думаешь наперед, о здоровье и безопасности всей семьи. Потому, домом должна быть не типовая квартира в загазованном городе, а просторный и надежный деревянный коттедж.
Готовые проекты деревянных домов с доставкой в Минске
Компания «Домеко», занимаясь много лет деревянным строительством, собрала множество типовых проектов деревянных домов, построенных в Минске. Среди готовых проектов найдутся деревянные коттеджи разной площади, одно и двухэтажные, с террасой и мансардами, с гаражами и без гаражей, с просторным и широким крыльцом, с лестницами и балконами.
Каждый типовой проект можно превратить в индивидуальный, следуя вашим пожеланиям. Опытный архитектор поможет создать неповторимый стиль, внести изменения в планировку, размеры дома.
Современные технологии строительства позволили сократить срок возведения деревянного дома. Еще буквально 10 лет назад для строительства деревянного дома требовались годы: подготовка фундамента, заготовка бревен, сушка дерева, лакокрасочные работы. Сегодня в срок от 1 до 2 месяцев можно построить настоящий терем.
Деревянный дом из профилированного бруса за 2 месяца
Профилированный брус — это изготовленный из древесины хвойных пород материал, обладающий всеми свойствами дерева и заранее подготовленный для строительства. Как правило, к началу сборки коттеджа профилированный брус уже обработан специальными антисептическими растворами, прошел сушку, усадку и имеет специальные «замки».
Строительство деревянных домов из профилированного бруса похоже на сбор мозаики: каждый брус имеет специальные пазы, которые помогают бревнам плотно держаться друг за друга.
Удобства строительства из профилированного бруса:
- профилированный брус имеет такие же хорошие показатели по теплоснабжению, как и обычная древесина
- предварительная обработка бруса позволяет сократить срок строительства, т.к. брус полностью готов к монтажу
- процент усадки профилированного бруса после возведения дома значительно ниже, чем у неподготовленной древесины
- благодаря «шип-пазам» брус плотно прилегает друг к другу и тем самым бережет тепло
- брус может быть разной толщины, но толщина свыше 20 см не требует дополнительного утепления
Стоимость строительства деревянного дома под ключ в Беларуси зависит только от размеров коттеджа. Однако, прежде чем определить окончательную стоимость дома требуется тщательно проработанный проект.
Деревянный дом полностью защищает семью от непогоды: летом в нем сохраняется приятная прохлада и циркулирует воздух, а зимой тепло не «уходит» на улицу. Строительство деревянного дома станет инвестицией в благополучие и здоровье семьи на долгие годы.
